1704 – 85 Bloor Street E, Toronto, Ontario M4W 3Y1 (29457210)
1704 - 85 Bloor Street E Toronto, Ontario M4W 3Y1
1 Bedroom
1 Bathroom
500 - 599 ft2
Central Air Conditioning
Forced Air
$2,300 Monthly
Gorgeously renovated condo located right by Yonge and Bloor. Spacious, open concept, 1 bedroom with full-sized appliances, balcony, and unobstructed north view. Large bedroom has a window with a walk-out to the balcony and no sliding doors! Tons of natural light pours in. The quiet suite is situated away from the noise of the elevator & garbage chute. Walk Score 100. Bike Score 91. Shopping, cafes, restaurants, entertainment & TTC right at your door. Pets allowed, but building has a restriction on large dogs. (id:27377)
Property Details
| MLS® Number | C12871616 |
| Property Type | Single Family |
| Community Name | Church-Yonge Corridor |
| Amenities Near By | Park, Place Of Worship, Public Transit |
| Community Features | Pets Not Allowed, Community Centre |
| Features | Balcony |
| View Type | View |
Building
| Bathroom Total | 1 |
| Bedrooms Above Ground | 1 |
| Bedrooms Total | 1 |
| Amenities | Security/concierge, Recreation Centre, Exercise Centre, Party Room |
| Appliances | Dishwasher, Dryer, Microwave, Stove, Washer, Refrigerator |
| Basement Type | None |
| Cooling Type | Central Air Conditioning |
| Exterior Finish | Concrete |
| Flooring Type | Hardwood |
| Heating Fuel | Natural Gas |
| Heating Type | Forced Air |
| Size Interior | 500 - 599 Ft2 |
| Type | Apartment |
Parking
| Underground | |
| Garage |
Land
| Acreage | No |
| Land Amenities | Park, Place Of Worship, Public Transit |
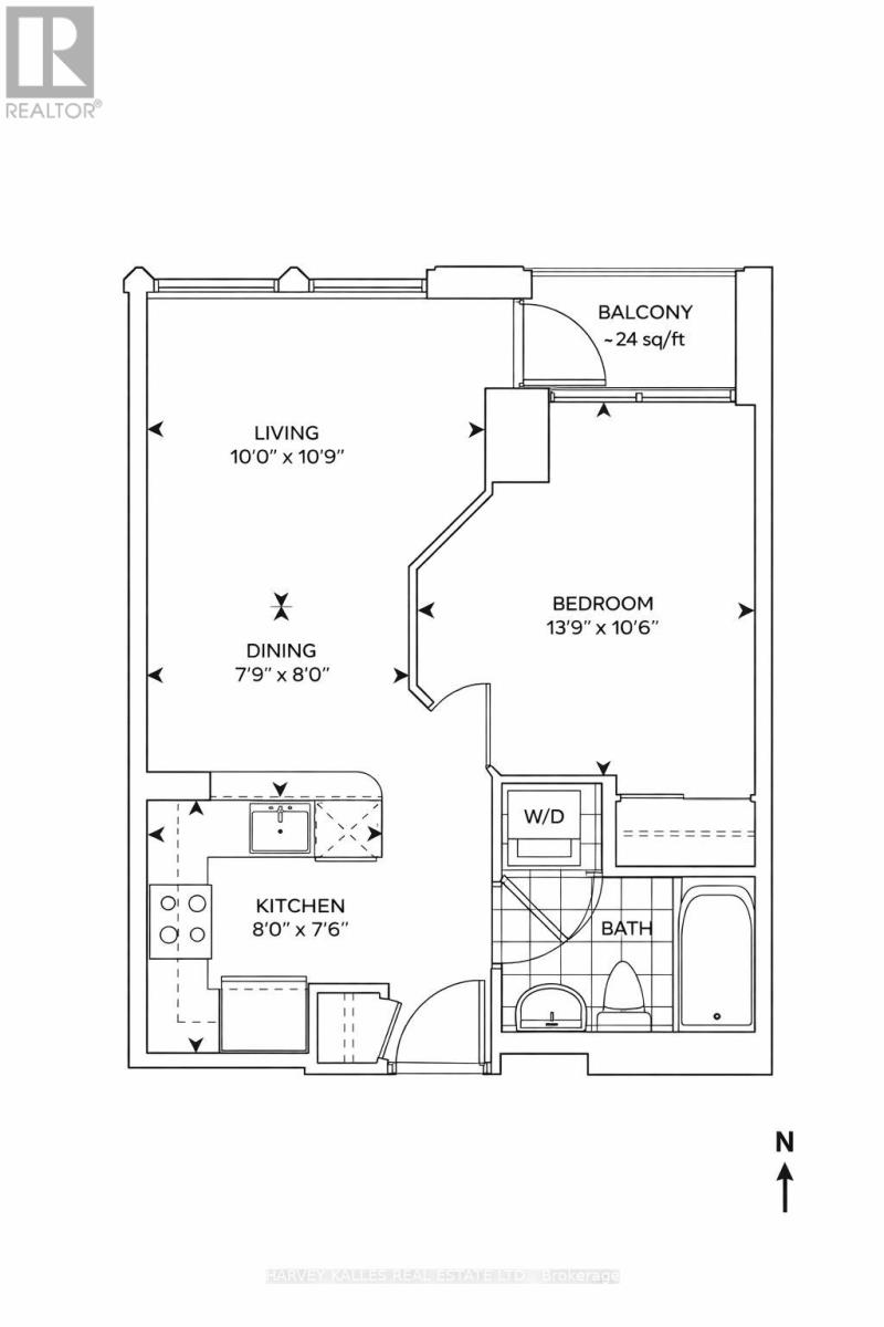
Rooms
| Level | Type | Length | Width | Dimensions |
|---|---|---|---|---|
| Flat | Kitchen | 2.44 m | 2.29 m | 2.44 m x 2.29 m |
| Flat | Living Room | 3.05 m | 3.28 m | 3.05 m x 3.28 m |
| Flat | Dining Room | 2.36 m | 2.44 m | 2.36 m x 2.44 m |
| Flat | Primary Bedroom | 4.19 m | 3.2 m | 4.19 m x 3.2 m |
Contact Us
Contact us for more information
Jaime Goldman
Broker
Harvey Kalles Real Estate Ltd.
2145 Avenue Road
Toronto, Ontario M5M 4B2
2145 Avenue Road
Toronto, Ontario M5M 4B2
Cathy Goldman
Salesperson
www.goldmanteamhomes.com/
Harvey Kalles Real Estate Ltd.
2145 Avenue Road
Toronto, Ontario M5M 4B2
2145 Avenue Road
Toronto, Ontario M5M 4B2






































