201 – 113 Dupont Street, Toronto, Ontario M5R 1V4 (29491324)
201 - 113 Dupont Street Toronto, Ontario M5R 1V4
$2,895,000Maintenance, Water, Insurance, Parking, Common Area Maintenance
$2,647.88 Monthly
Maintenance, Water, Insurance, Parking, Common Area Maintenance
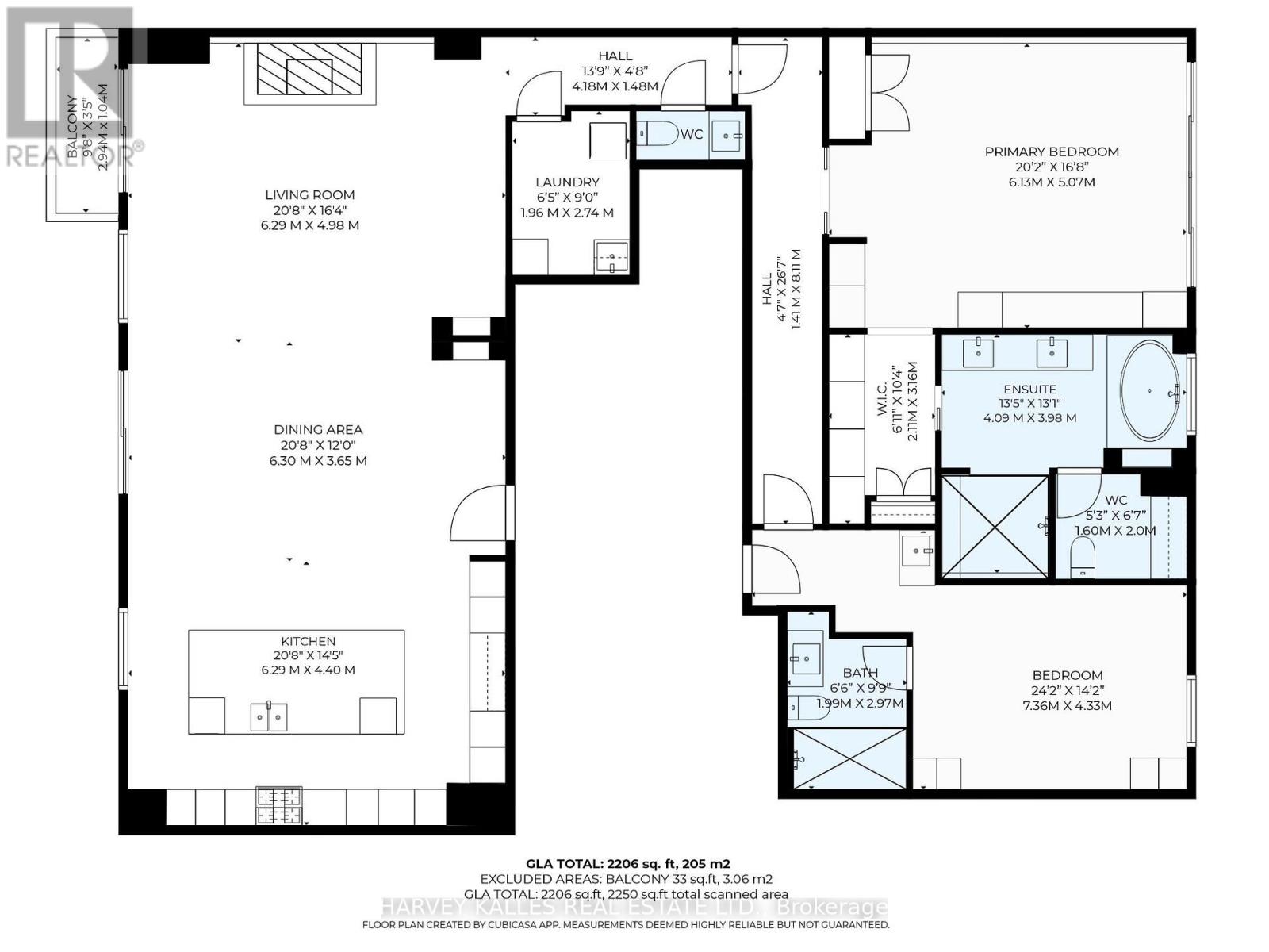
$2,647.88 MonthlyRarely available designer loft in an intimate boutique building of just seven residences, offering the scale, privacy, and feel of a luxury home in the heart of the Annex. This exceptional suite features two bedrooms, each with its own private ensuite, plus a powder room. Exposed brick walls and stunning white oak herringbone floors create a warm and sophisticated atmosphere throughout. The designer kitchen is beautifully appointed with premium appliances including a Sub-Zero refrigerator and freezer, Wolf gas range, built-in Miele stainless steel wall ovens and microwave, panelled dishwasher, and a coffee & water station complete with reverse osmosis system. The primary suite offers a true five-star retreat with custom lined built-in closets and a luxurious five-piece ensuite featuring a freestanding soaking tub and separate steam shower. The second bedroom enjoys its own private entrance, making it ideal as a guest or teenage suite, which this space includes a three-piece ensuite, wet bar, and custom built-in cabinetry. This residence is fully automated with a Control4 system for lighting and mechanical blinds, along with Sonos surround sound throughout. Two garage parking spaces at grade are included. Unbeatable midtown location just steps to Yorkville, cafés, restaurants, and boutique shopping. All furnishings are available for purchase. (id:27377)
Property Details
| MLS® Number | C12899840 |
| Property Type | Single Family |
| Community Name | Annex |
| Amenities Near By | Public Transit |
| Community Features | Pets Allowed With Restrictions |
| Equipment Type | None |
| Features | Elevator, Balcony, Carpet Free, In Suite Laundry |
| Parking Space Total | 2 |
| Rental Equipment Type | None |
Building
| Bathroom Total | 3 |
| Bedrooms Above Ground | 2 |
| Bedrooms Total | 2 |
| Amenities | Fireplace(s), Storage - Locker |
| Appliances | Oven - Built-in, Water Heater, Window Coverings |
| Architectural Style | Loft |
| Basement Type | None |
| Cooling Type | Central Air Conditioning |
| Exterior Finish | Brick |
| Fire Protection | Security System |
| Fireplace Present | Yes |
| Fireplace Total | 1 |
| Flooring Type | Hardwood |
| Half Bath Total | 1 |
| Heating Fuel | Natural Gas |
| Heating Type | Forced Air |
| Size Interior | 2,000 - 2,249 Ft2 |
| Type | Apartment |
Parking
| Underground | |
| Garage |
Land
| Acreage | No |
| Land Amenities | Public Transit |
Rooms
| Level | Type | Length | Width | Dimensions |
|---|---|---|---|---|
| Flat | Kitchen | 6.31 m | 4.31 m | 6.31 m x 4.31 m |
| Flat | Living Room | 6.31 m | 5.14 m | 6.31 m x 5.14 m |
| Flat | Dining Room | 6.31 m | 3.76 m | 6.31 m x 3.76 m |
| Flat | Primary Bedroom | 6.13 m | 5.07 m | 6.13 m x 5.07 m |
| Flat | Bedroom 2 | 7.36 m | 4.25 m | 7.36 m x 4.25 m |
https://www.realtor.ca/real-estate/29491324/201-113-dupont-street-toronto-annex-annex
Contact Us
Contact us for more information
Adam Samuel
Salesperson
2145 Avenue Road
Toronto, Ontario M5M 4B2
Jack H. Samuel
Salesperson
2145 Avenue Road
Toronto, Ontario M5M 4B2








































































