202 Dinnick Crescent, Toronto (Lawrence Park South), Ontario M4N 1M3 (29324433)
202 Dinnick Crescent Toronto, Ontario M4N 1M3
$2,895,000
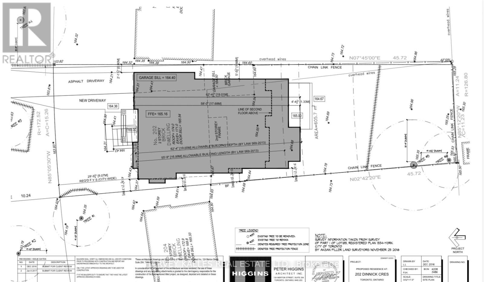
An exceptional opportunity in the heart of Lawrence Park. This prime 50 x 150 ft lot features a sun-filled, south-facing backyard with rare depth and endless potential to create something truly special. Peter Higgins Arch. Plans offer a spectacular detached single family home or build multiple units with plans included. A turnkey opportunity for builders, investors, or end users looking to secure a foothold in one of Toronto's most prestigious neighbourhoods. Just a short walk to the Yonge subway and surrounded by top-ranked schools including Bedford Park, Blythwood, Glenview and Lawrence Park CI, along with Blessed Sacrament and elite private schools such as TFS, Crescent, Havergal and St. Clement's. Steps to Alexander Muir Park, the George Locke Library, and the vibrant shops and cafés along Yonge Street - this is a rare chance to build new in a truly unbeatable location. (id:27377)
Property Details
| MLS® Number | C12758648 |
| Property Type | Single Family |
| Community Name | Lawrence Park South |
| Amenities Near By | Park, Public Transit, Place Of Worship, Schools |
| Community Features | Community Centre |
| Features | Irregular Lot Size |
| Parking Space Total | 6 |
Building
| Bathroom Total | 2 |
| Bedrooms Above Ground | 4 |
| Bedrooms Below Ground | 1 |
| Bedrooms Total | 5 |
| Appliances | Dryer, Washer, Window Coverings |
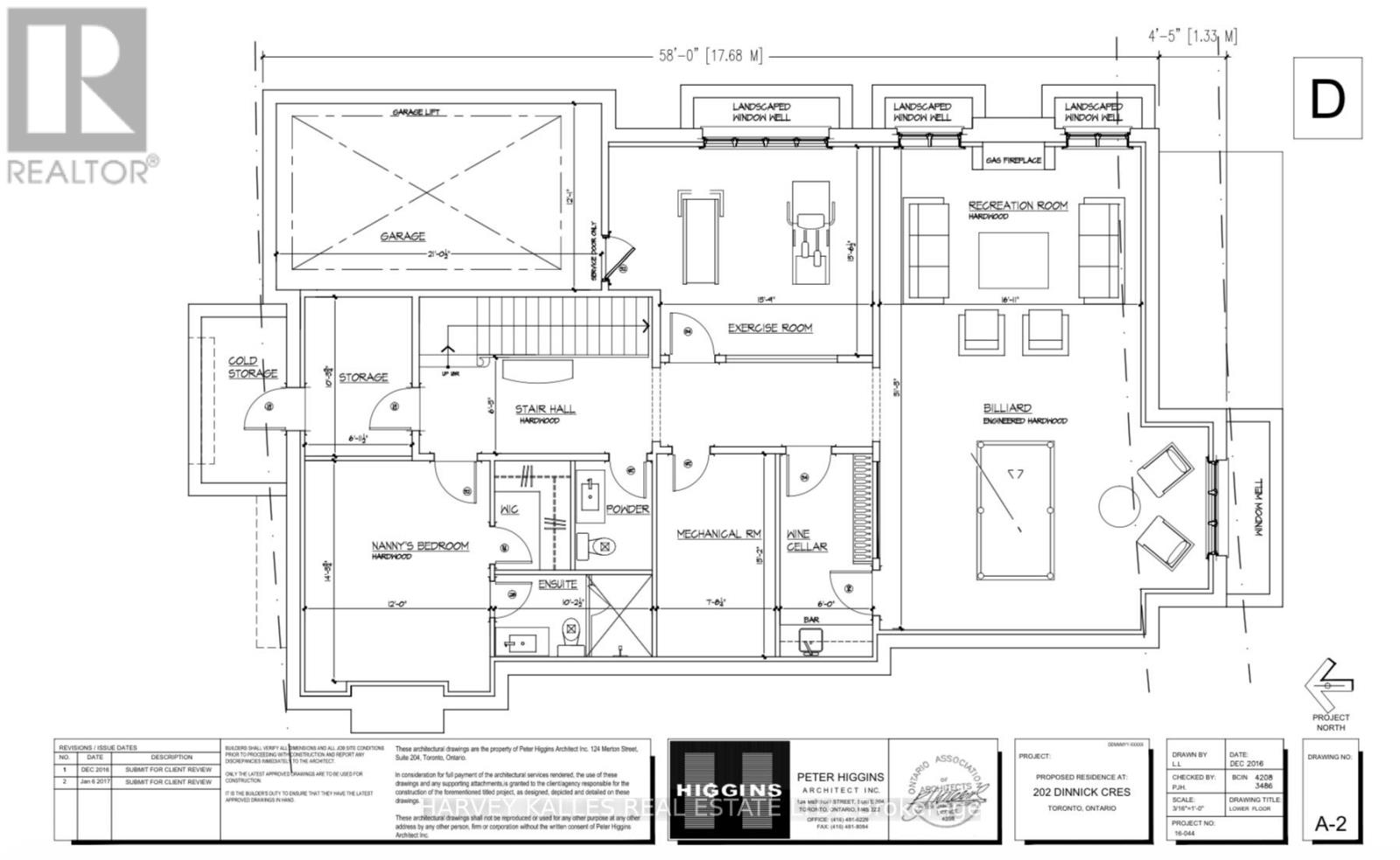
| Basement Development | Finished |
| Basement Type | N/a (finished) |
| Construction Style Attachment | Detached |
| Cooling Type | Wall Unit |
| Exterior Finish | Brick, Stucco |
| Fireplace Present | Yes |
| Foundation Type | Concrete |
| Stories Total | 2 |
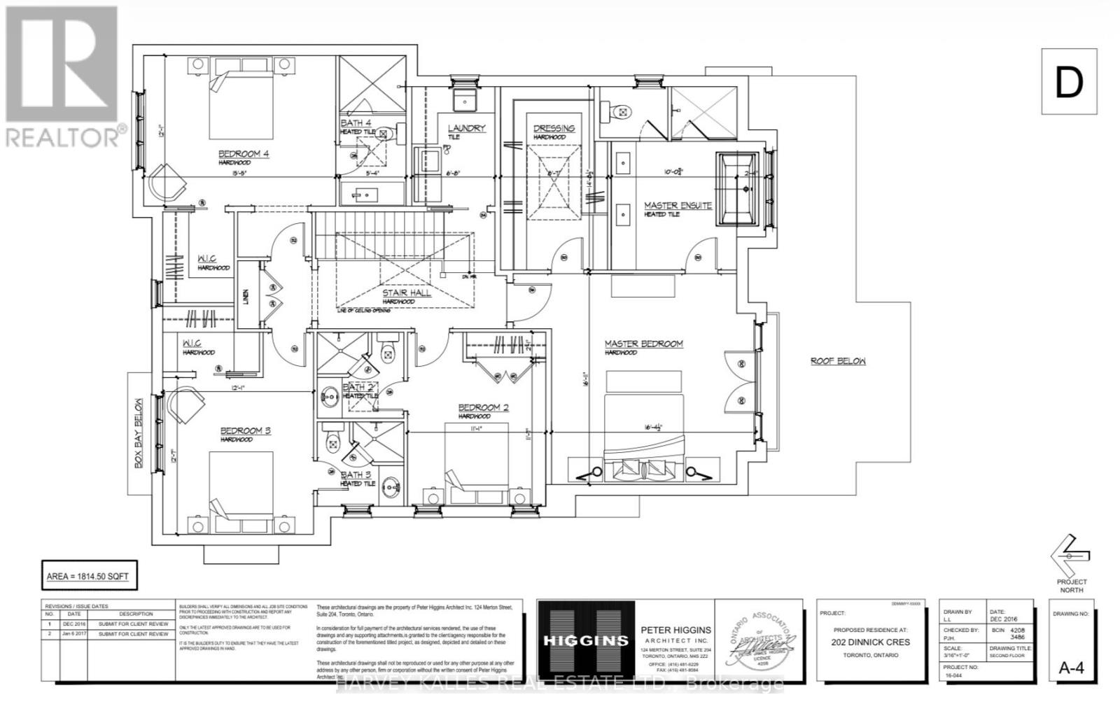
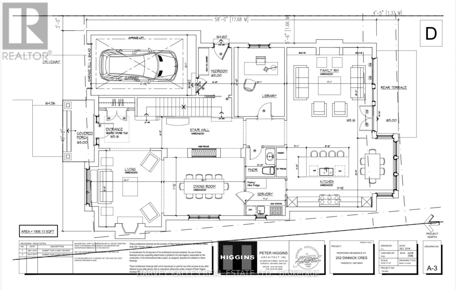
| Size Interior | 1,500 - 2,000 Ft2 |
| Type | House |
| Utility Water | Municipal Water |
Parking
| Attached Garage | |
| Garage |
Land
| Acreage | No |
| Land Amenities | Park, Public Transit, Place Of Worship, Schools |
| Sewer | Sanitary Sewer |
| Size Depth | 150 Ft |
| Size Frontage | 50 Ft |
| Size Irregular | 50 X 150 Ft ; 52.30ftx149.56ftx1.75ftx35.12ftx149.58ft |
| Size Total Text | 50 X 150 Ft ; 52.30ftx149.56ftx1.75ftx35.12ftx149.58ft |
Rooms
| Level | Type | Length | Width | Dimensions |
|---|---|---|---|---|
| Second Level | Primary Bedroom | 3.78 m | 2.96 m | 3.78 m x 2.96 m |
| Second Level | Bedroom 2 | 3.28 m | 3.14 m | 3.28 m x 3.14 m |
| Second Level | Bedroom 3 | 4.52 m | 3.3 m | 4.52 m x 3.3 m |
| Second Level | Bedroom 4 | 3.8 m | 2.86 m | 3.8 m x 2.86 m |
| Lower Level | Bedroom | 3.64 m | 2.86 m | 3.64 m x 2.86 m |
| Lower Level | Recreational, Games Room | 7.56 m | 3.21 m | 7.56 m x 3.21 m |
| Main Level | Living Room | 5.45 m | 3.79 m | 5.45 m x 3.79 m |
| Main Level | Dining Room | 4.43 m | 3.75 m | 4.43 m x 3.75 m |
| Main Level | Study | 3.78 m | 2.15 m | 3.78 m x 2.15 m |
| Main Level | Kitchen | 3.27 m | 2.45 m | 3.27 m x 2.45 m |
Contact Us
Contact us for more information
Michael Joseph Silverberg
Salesperson
(416) 949-3134
michaeljsilverberg.com/
2145 Avenue Road
Toronto, Ontario M5M 4B2
Adam David Weiner
Salesperson
(416) 545-9151
www.adamweiner.ca/
facebook.com/adamweinerrealestate
2145 Avenue Road
Toronto, Ontario M5M 4B2




































































































